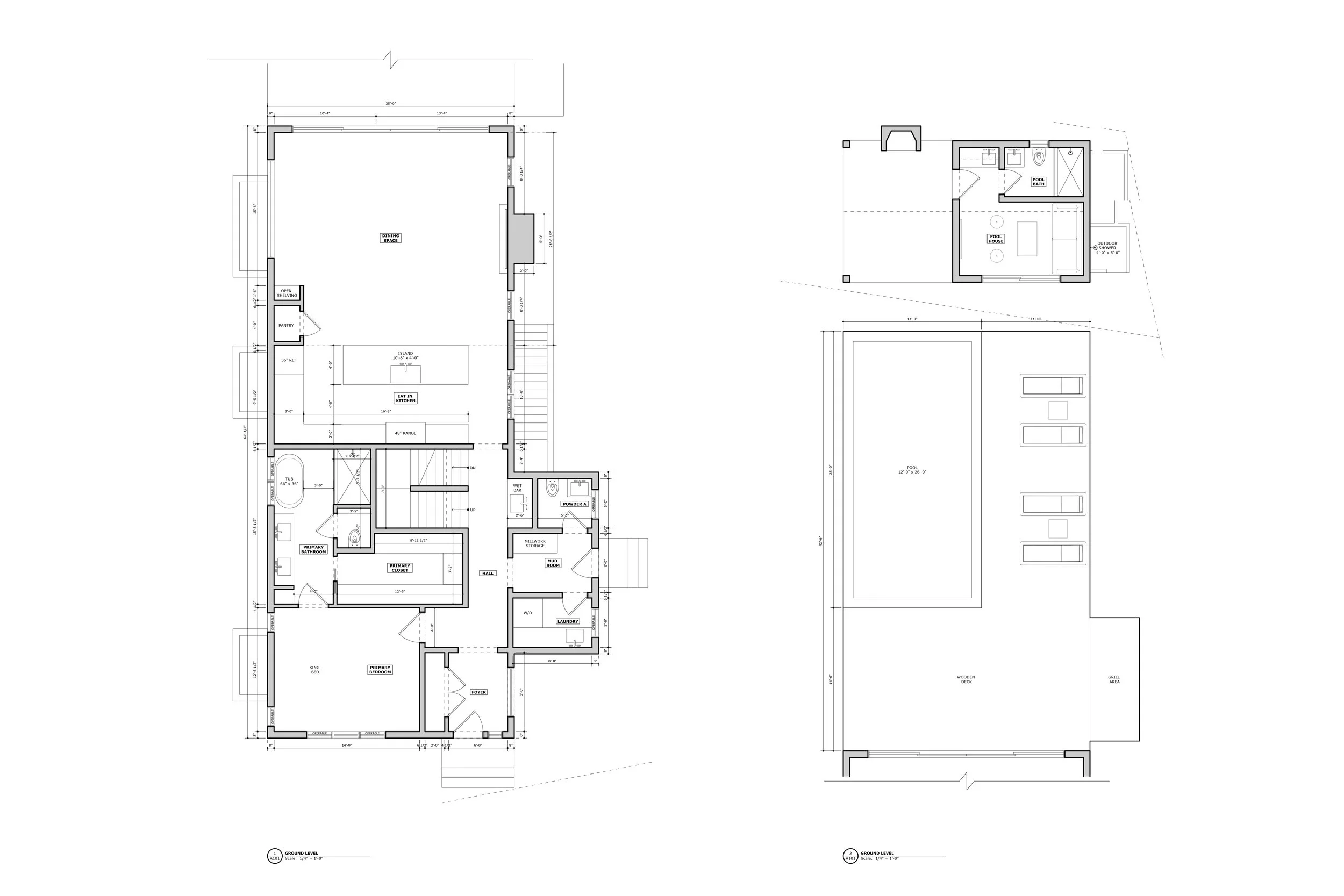
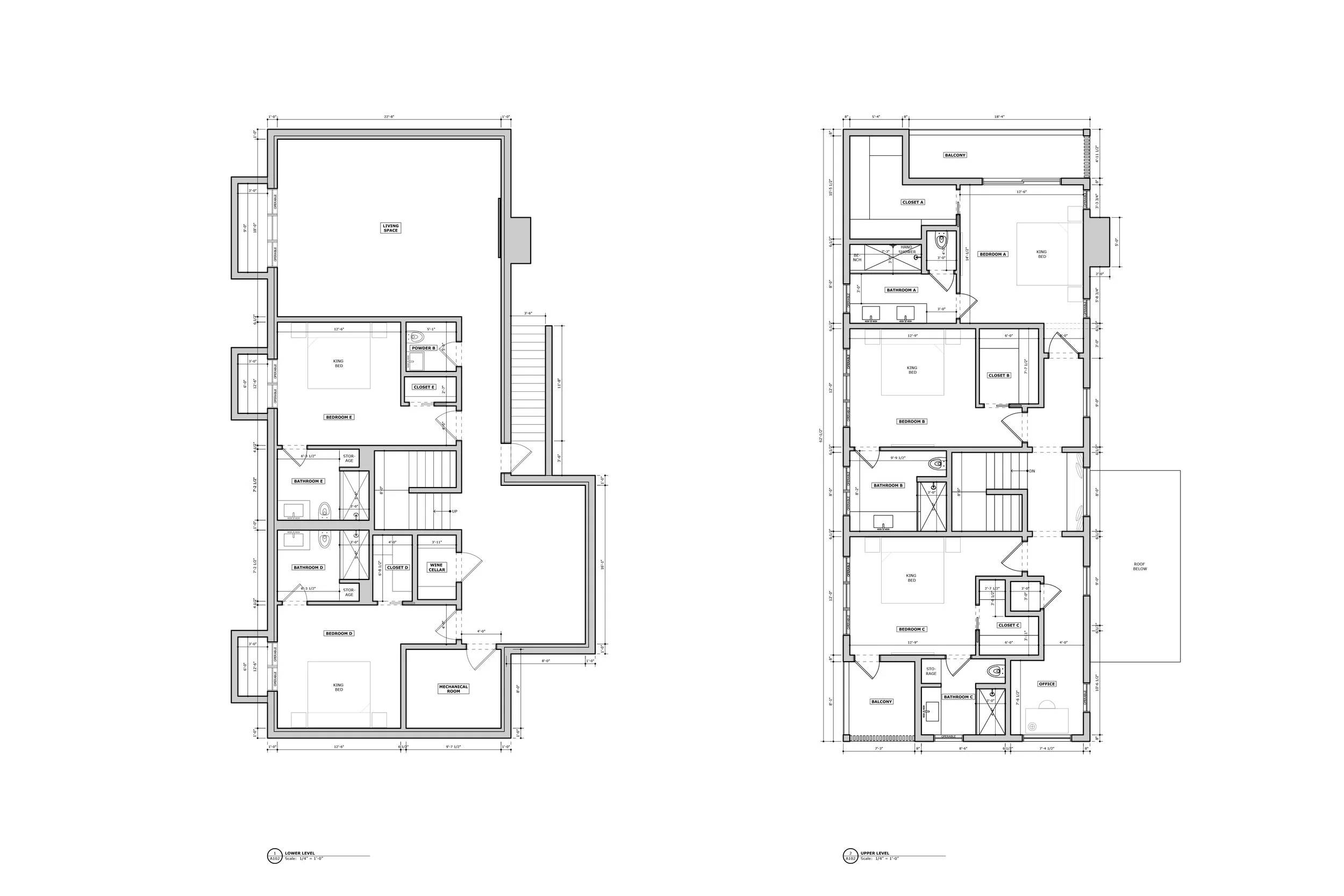
9 Forrest

9 Forrest is a ground up residential home located in the Hamptons. The property is just outside the historic district of Sag Harbor and aims to pay homage to that rich vernacular history while incorporating a contemporary design approach.

The following project is in partnership with Robert Hein of RH3 Group

Previous
Previous

Renderings

Next
Next

Housing for the Arts